


| 賃料 | 総額185,000円 (坪単価9,861円) |
|---|---|
| 共益費 | 総額15,000円 (坪単価800円) |
| 合計賃料 | 総額200,000円 |
| 預託金 | 賃料の2ヶ月分 (総額370,000円) |
| 入居可能日 | 相談 |
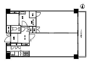
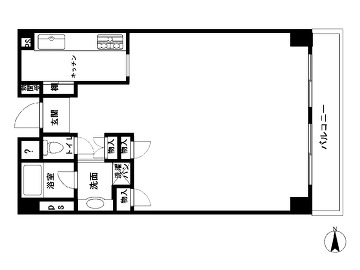
| 物件名 | ストーク新宿 (ビルコード:2855) |
|---|---|
| 構造 | 鉄骨鉄筋コンクリート造 |
| 規模 | 地下1階地上12階建 |
| エレベーター | 2基 |
| 竣工 | 1979年03月 |
| 募集階数 | 4階 |
| 面積 | 18.76坪 |
| 所在地 | |
| 交通・アクセス |
|
| 備考 | |
| 最終確認日 | 2026/02/27 |
天高 -
賃料・共益費・合計賃料には別途消費税がかかります。
募集状況は常時変動しているため、お問い合わせを頂いた時点でご紹介できない場合がございます。
フロアによって設備に違いがある場合がございます。
フロア賃料・ビル設備を含め賃貸借条件は貸主の事情により変更されている場合がございます。予めご了承下さい。