


| 賃料 | 総額200,000円 (坪単価10,325円) | 
|---|---|
| 共益費 | 総額10,000円 (坪単価516円) | 
| 合計賃料 | 総額210,000円 | 
| 預託金 | 賃料の2ヶ月分 (総額400,000円) | 
| 入居可能日 | 即日 | 
| 物件名 | S.COURT (ビルコード:22036) | 
|---|---|
| 構造 | 鉄筋コンクリート造 | 
| 規模 | 地下1階地上5階建 | 
| エレベーター | 1基 | 
| 竣工 | 1990年10月 (新耐震基準ビル) | 
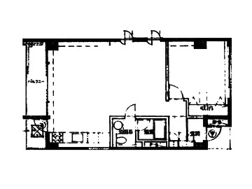
| 募集階数 | 4階 | 
| 面積 | 19.37坪 | 
| 所在地 | |
| 交通・アクセス | |
| 備考 | |
| 最終確認日 | 2025/10/30 | 
天高 -
賃料・共益費・合計賃料には別途消費税がかかります。
募集状況は常時変動しているため、お問い合わせを頂いた時点でご紹介できない場合がございます。
フロアによって設備に違いがある場合がございます。
フロア賃料・ビル設備を含め賃貸借条件は貸主の事情により変更されている場合がございます。予めご了承下さい。