
[ エリア ] 銀座エリア の賃貸オフィス検索結果

並び替え
土志田
ビルコード:13209
| 住所 | 東京都中央区銀座1-6-11 |
|---|---|
| 交通 | 有楽町線:銀座一丁目駅:1分 JR:有楽町駅:3分 有楽町線:有楽町駅:3分 丸ノ内線:銀座駅:4分 銀座線:銀座駅:5分 |
| 階数 | 地下1階地上8階建 |
| 竣工 | 1972年12月 |
| エレベーター1基 |
-

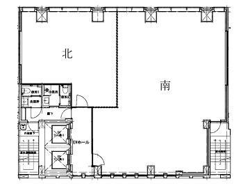
7階62.88坪
賃料(共益費)相談
銀友
ビルコード:31884
| 住所 | 東京都中央区銀座1-13-12 |
|---|---|
| 交通 | 有楽町線:銀座一丁目駅:1分 浅草線:東銀座駅:3分 銀座線:銀座駅:3分 浅草線:宝町駅:4分 日比谷線:銀座駅:5分 |
| 階数 | 地下1階地上10階建 |
| 竣工 | 1961年06月 |
| エレベーター1基 |
VORT銀座イーストIII
ビルコード:183245
| 住所 | 東京都中央区銀座4-14-8 |
|---|---|
| 交通 | 日比谷線:東銀座駅:1分 三田線:内幸町駅:2分 浅草線:東銀座駅:2分 JR:新橋駅:6分 有楽町線:新富町駅:6分 |
| 階数 | 地上10階建 |
| 竣工 | 2022年11月 (新耐震基準ビル) |
| エレベーター1基 |
-

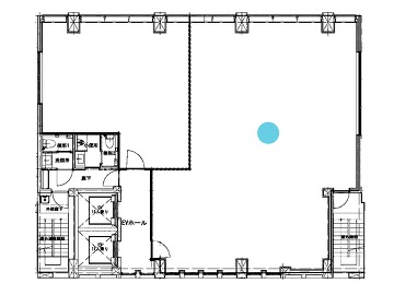
5階19.78坪
賃料(共益費)相談
銀座111レジャー
ビルコード:146294
| 住所 | 東京都中央区銀座4-2-17 |
|---|---|
| 交通 | 丸ノ内線:銀座駅:1分 日比谷線:銀座駅:2分 銀座線:銀座駅:2分 JR:有楽町駅:3分 有楽町線:銀座一丁目駅:5分 |
| 階数 | 地下1階地上13階建 |
| 竣工 | 2013年07月 (新耐震基準ビル) |
| エレベーター3基 |
第5安田
ビルコード:12392
野村不動産銀座(新橋演舞場)
ビルコード:101216
| 住所 | 東京都中央区銀座6-18-2 |
|---|---|
| 交通 | 日比谷線:東銀座駅:3分 大江戸線:築地市場駅:3分 日比谷線:銀座駅:7分 銀座線:新橋駅:10分 JR:有楽町駅:16分 |
| 階数 | 地下5階地上17階建 |
| 竣工 | 1982年03月 (耐震補強) |
| エレベーター7基 |
SUGIURA GINZA
ビルコード:208684
| 住所 | 東京都中央区銀座1-28-16 |
|---|---|
| 交通 | 有楽町線:新富町駅:2分 浅草線:宝町駅:4分 有楽町線:銀座一丁目駅:5分 日比谷線:築地駅:6分 JR:八丁堀駅:8分 |
| 階数 | 地下1階地上8階建 |
| 竣工 | 2025年05月 (新耐震基準ビル) |
| エレベーター2基 |
PMO銀座II
ビルコード:183115
| 住所 | 東京都中央区銀座8-17-1 |
|---|---|
| 交通 | 大江戸線:築地市場駅:4分 浅草線:東銀座駅:7分 日比谷線:東銀座駅:7分 銀座線:新橋駅:10分 JR:新橋駅:10分 |
| 階数 | 地上9階建 |
| 竣工 | 2023年10月 (新耐震基準ビル) |
-

4階75.70坪
賃料(共益費)相談
銀座7
ビルコード:116952
| 住所 | 東京都中央区銀座7-15-11 |
|---|---|
| 交通 | 大江戸線:築地市場駅:3分 日比谷線:東銀座駅:5分 大江戸線:汐留駅:6分 JR:新橋駅:9分 |
| 階数 | 地下1階地上13階建 |
| 竣工 | 2010年05月 (新耐震基準ビル) |
| エレベーター1基 |
-

3階15.27坪
賃料(共益費)相談
銀座ウェスト
ビルコード:150744
| 住所 | 東京都中央区銀座3-4-18 |
|---|---|
| 交通 | 有楽町線:銀座一丁目駅:2分 日比谷線:銀座駅:2分 銀座線:銀座駅:2分 丸ノ内線:銀座駅:3分 JR:有楽町駅:4分 |
| 階数 | 地上4階建 |
| 竣工 | 2017年12月 (新耐震基準ビル) |
-

1-4階56.70坪
77,601円/坪
賃料・共益費・合計賃料には別途消費税がかかります。
募集状況は常時変動しているため、お問い合わせを頂いた時点でご紹介できない場合がございます。
フロアによって設備に違いがある場合がございます。
フロア賃料・ビル設備を含め賃貸借条件は貸主の事情により変更されている場合がございます。予めご了承下さい。






















































