


| 賃料 | 総額320,000円 (坪単価11,073円) |
|---|---|
| 共益費 | 総額30,000円 (坪単価1,038円) |
| 合計賃料 | 総額350,000円 |
| 預託金 | 賃料の4ヶ月分 (総額1,280,000円) |
| 入居可能日 | 2025年12月 |
| 物件名 | 大永初台マンション (ビルコード:65866) |
|---|---|
| 構造 | 鉄骨鉄筋コンクリート造 |
| 規模 | 地上11階建 |
| エレベーター | 2基 |
| 竣工 | 1971年04月 |
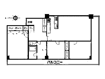
| 募集階数 | 4階 |
| 面積 | 28.90坪 |
| 所在地 | |
| 交通・アクセス |
|
| 備考 | |
| 最終確認日 | 2025/11/26 |
天高 -
賃料・共益費・合計賃料には別途消費税がかかります。
募集状況は常時変動しているため、お問い合わせを頂いた時点でご紹介できない場合がございます。
フロアによって設備に違いがある場合がございます。
フロア賃料・ビル設備を含め賃貸借条件は貸主の事情により変更されている場合がございます。予めご了承下さい。