


| 賃料 | 相談 |
|---|---|
| 共益費 | 相談 |
| 合計賃料 | 相談 |
| 預託金 | 相談 |
| 入居可能日 | 2026年06月 |
| 物件名 | 内神田渋谷 (ビルコード:132095) |
|---|---|
| 構造 | 鉄筋コンクリート造 |
| 規模 | 地上11階建 |
| エレベーター | 2基 |
| 竣工 | 2013年09月 (新耐震基準ビル) |
| 募集階数 | 3階 |
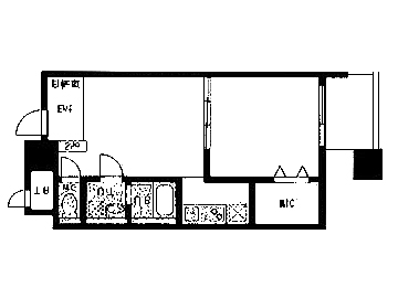
| 面積 | 13.95坪 |
| 所在地 | |
| 交通・アクセス |
|
| 備考 | |
| 最終確認日 | 2025/12/23 |
天高2550mm
賃料・共益費・合計賃料には別途消費税がかかります。
募集状況は常時変動しているため、お問い合わせを頂いた時点でご紹介できない場合がございます。
フロアによって設備に違いがある場合がございます。
フロア賃料・ビル設備を含め賃貸借条件は貸主の事情により変更されている場合がございます。予めご了承下さい。
複数路線が利用可能な神田駅から徒歩4分、ガラスウォールの外壁も目を引く角地ビルです。1-2階は飲食店舗、3-4階はSOHO可能な住居仕様、5-11階は事務所仕様の複合ビルとなっております。