ウィン青山BIZ+ビル
ビルコード:23258
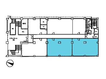
| 募集階数 | 2階 |
|---|---|
| 面積 | 70.88坪 |
| 賃料 | 総額1,701,120円 (坪単価24,000円) |
| 共益費 | 賃料に含む |
| 合計賃料 | 総額1,701,120円 |
| 預託金 | 総額6,804,480円 (坪単価 96,000円) |
| 入居可能日 | 2026年08月 |
| 所在地 | 東京都港区南青山2-2-15 →Google Map |
| 交通 アクセス |
東京メトロ銀座線 青山一丁目駅1分 東京メトロ半蔵門線 青山一丁目駅1分 都営大江戸線 青山一丁目駅1分 東京メトロ銀座線 外苑前駅8分 東京メトロ千代田線 乃木坂駅10分 |
| 規模 | 地下3階地上14階建 |
| 構造 | 鉄骨鉄筋コンクリート造 |
| 竣工 | 1980年01月 |
| フロア設備 | 個別空調 OAフロア トイレ男女別 24時間使用可 駐車場有 天高2500mm |
| 備考 |
周辺マップ
ビルコード:23258






