JA共済埼玉ビル
ビルコード:374
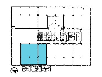
| 募集階数 | 2階 |
|---|---|
| 面積 | 87.06坪 |
| 賃料 | 相談 |
| 共益費 | 相談 |
| 合計賃料 | 相談 |
| 預託金 | 相談 |
| 入居可能日 | 2026年07月 |
| 所在地 | 埼玉県さいたま市大宮区土手町1-2 →Google Map |
| 交通 アクセス |
東武野田線 北大宮駅5分 JR埼京線 大宮駅12分 JR川越線 大宮駅12分 JR宇都宮線 大宮駅12分 JR京浜東北線 大宮駅12分 JR湘南新宿ライン 大宮駅12分 JR高崎線 大宮駅12分 |
| 規模 | 地下2階地上14階建 |
| 構造 | 鉄骨造+一部鉄筋コンクリート造 |
| 竣工 | 1974年06月 (耐震補強) |
| フロア設備 | 個別空調 OAフロア トイレ男女別 駐車場有 新耐震基準 |
| 備考 |
周辺マップ
ビルコード:374






