日本生命東八重洲ビル
ビルコード:43268
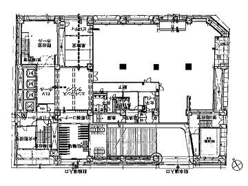
| 募集階数 | 1階 |
|---|---|
| 面積 | 101.51坪 |
| 賃料 | 相談 |
| 共益費 | 相談 |
| 合計賃料 | 相談 |
| 預託金 | 相談 |
| 入居可能日 | 相談 |
| 所在地 | 東京都中央区八丁堀2-6-1 →Google Map |
| 交通 アクセス |
東京メトロ日比谷線 八丁堀駅3分 JR山手線 東京駅10分 JR横須賀線 東京駅10分 JR中央線快速 東京駅10分 JR総武線快速 東京駅10分 JR京葉線 東京駅10分 JR京浜東北線 東京駅10分 JR東海道本線 東京駅10分 JR総武本線 東京駅10分 |
| 規模 | 地下2階地上9階建 |
| 構造 | 鉄骨鉄筋コンクリート造 |
| 竣工 | 1964年 (耐震補強) |
| フロア設備 | OAフロア トイレ男女別 駐車場有 新耐震基準 天高2500mm |
| 備考 |
周辺マップ
ビルコード:43268



