MSビル
ビルコード:216464
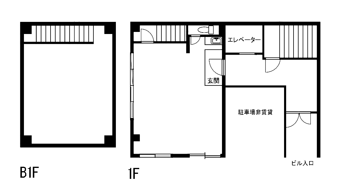
| 募集階数 | B1-1階 |
|---|---|
| 面積 | 24.50坪 |
| 賃料 | 総額200,000円 (坪単価8,163円) |
| 共益費 | 総額10,000円 (坪単価408円) |
| 合計賃料 | 総額210,000円 |
| 預託金 | 総額1,200,000円 (坪単価 48,980円) |
| 入居可能日 | 相談 |
| 所在地 | 東京都台東区小島2-10-1 →Google Map |
| 交通 アクセス |
つくばエクスプレス 新御徒町駅3分 JR山手線 御徒町駅11分 JR京浜東北線 御徒町駅11分 |
| 規模 | 地上5階建 |
| 構造 | 鉄骨造 |
| 竣工 | 1988年11月 (新耐震基準ビル) |
| フロア設備 | 新耐震基準 |
| 備考 |
周辺マップ
ビルコード:216464

