リエス京成小岩駅前ビル
ビルコード:183265
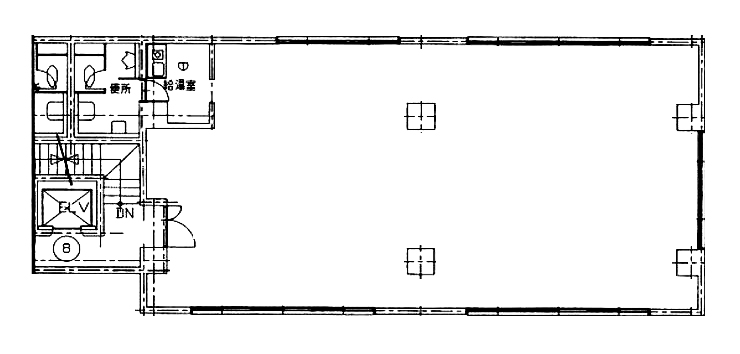
| 募集階数 | 2階 |
|---|---|
| 面積 | 39.51坪 |
| 賃料 | 総額490,000円 (坪単価12,402円) |
| 共益費 | 総額60,000円 (坪単価1,519円) |
| 合計賃料 | 総額550,000円 |
| 預託金 | 賃料の3ヶ月分 |
| 入居可能日 | 相談 |
| 所在地 | 東京都江戸川区北小岩6-15-10 →Google Map |
| 交通 アクセス |
JR中央・総武線 小岩駅15分 北総鉄道 新柴又駅16分 |
| 規模 | 地上7階建 |
| 構造 | 鉄骨鉄筋コンクリート造 |
| 竣工 | 1980年06月 |
| フロア設備 | 個別空調 24時間使用可 |
| 備考 |
周辺マップ
ビルコード:183265

