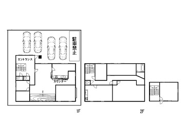
貸事務所・倉庫
ビルコード:216141
| 募集階数 | 1-2階 |
|---|---|
| 面積 | 90.00坪 |
| 賃料 | 相談 |
| 共益費 | 相談 |
| 合計賃料 | 相談 |
| 預託金 | 相談 |
| 入居可能日 | |
| 所在地 | 埼玉県狭山市堀兼764-8 →Google Map |
| 交通 アクセス |
西武新宿線 入曽駅36分 西武新宿線 新狭山駅43分 西武新宿線 狭山市駅47分 |
| 規模 | 地上2階建 |
| 構造 | 鉄骨造 |
| 竣工 | 1980年 |
| フロア設備 | 駐車場有 |
| 備考 |
周辺マップ
ビルコード:216141

