坂1鈴木貸家ビル
ビルコード:216101
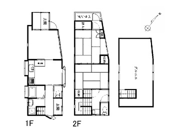
| 募集階数 | 1-2階 |
|---|---|
| 面積 | 21.51坪 |
| 賃料 | 総額130,000円 (坪単価6,044円) |
| 共益費 | 賃料に含む |
| 合計賃料 | 総額130,000円 |
| 預託金 | 賃料の2ヶ月分 |
| 入居可能日 | 即日 |
| 所在地 | 埼玉県川口市坂下町1-13-1 →Google Map |
| 交通 アクセス |
埼玉高速鉄道 鳩ケ谷駅4分 |
| 規模 | 地上2階建 |
| 構造 | 木造 |
| 竣工 | 1991年05月 (新耐震基準ビル) |
| フロア設備 | 個別空調 トイレ男女別 新耐震基準 |
| 備考 |
周辺マップ
ビルコード:216101

