アトリエール宮崎ビル
ビルコード:216097
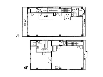
| 募集階数 | 3-4階 |
|---|---|
| 面積 | 52.66坪 |
| 賃料 | 総額200,000円 (坪単価3,798円) |
| 共益費 | 賃料に含む |
| 合計賃料 | 総額200,000円 |
| 預託金 | 総額800,000円 (坪単価 15,192円) |
| 入居可能日 | 即日 |
| 所在地 | 神奈川県横浜市南区高砂町1-10-19 →Google Map |
| 交通 アクセス |
横浜市ブルーライン 吉野町駅7分 横浜市ブルーライン 阪東橋駅10分 京急本線 黄金町駅13分 |
| 規模 | 地上4階建 |
| 構造 | 鉄筋コンクリート造 |
| 竣工 | 1986年12月 (新耐震基準ビル) |
| フロア設備 | 個別空調 新耐震基準 |
| 備考 |
周辺マップ
ビルコード:216097

