エクレール横浜西口ビル
ビルコード:78026
| 募集階数 | 9階 |
|---|---|
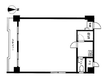
| 面積 | 15.92坪 |
| 賃料 | 総額150,000円 (坪単価9,422円) |
| 共益費 | 総額5,000円 (坪単価314円) |
| 合計賃料 | 総額155,000円 |
| 預託金 | 賃料の3ヶ月分 |
| 入居可能日 | 即日 |
| 所在地 | 神奈川県横浜市神奈川区鶴屋町3-32-14 →Google Map |
| 交通 アクセス |
JR東海道本線 横浜駅9分 JR根岸線 横浜駅9分 JR横須賀線 横浜駅9分 JR京浜東北線 横浜駅9分 JR湘南新宿ライン 横浜駅9分 東急東横線 横浜駅9分 京急本線 横浜駅9分 |
| 規模 | 地上10階建 |
| 構造 | 鉄骨鉄筋コンクリート造 |
| 竣工 | 1980年11月 |
| フロア設備 | 24時間使用可 駐車場有 |
| 備考 |
周辺マップ
ビルコード:78026



