仮)OAK LOGISTICS CENTER岩槻ビル
ビルコード:216048
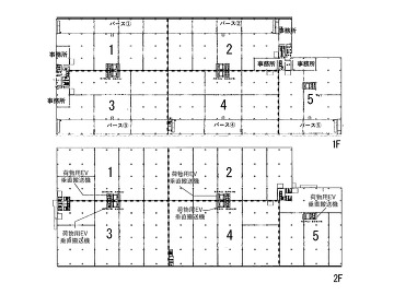
| 募集階数 | 1-2階 |
|---|---|
| 面積 | 3850.00坪 |
| 賃料 | 相談 |
| 共益費 | 相談 |
| 合計賃料 | 相談 |
| 預託金 | 相談 |
| 入居可能日 | 相談 |
| 所在地 | 埼玉県さいたま市岩槻区鹿室本宿770-1 →Google Map |
| 交通 アクセス |
東武野田線 豊春駅49分 東武野田線 東岩槻駅50分 東武野田線 八木崎駅58分 |
| 規模 | 地上2階建 |
| 構造 | 鉄骨造 |
| 竣工 | 2027年 (新耐震基準ビル) |
| フロア設備 | 駐車場有 新耐震基準 |
| 備考 |
周辺マップ
ビルコード:216048

