六国建設ビル
ビルコード:213798
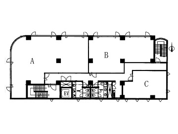
| 募集階数 | 3階 |
|---|---|
| 面積 | 23.82坪 |
| 賃料 | 総額298,000円 (坪単価12,510円) |
| 共益費 | 総額60,000円 (坪単価2,519円) |
| 合計賃料 | 総額358,000円 |
| 預託金 | 総額894,000円 (坪単価 37,531円) |
| 入居可能日 | 相談 |
| 所在地 | 神奈川県横浜市戸塚区品濃町550-5 →Google Map |
| 交通 アクセス |
JR横須賀線 東戸塚駅5分 JR湘南新宿ライン 東戸塚駅5分 |
| 規模 | 地上3階建 |
| 構造 | 鉄筋コンクリート造 |
| 竣工 | 2004年09月 (新耐震基準ビル) |
| フロア設備 | 個別空調 OAフロア トイレ男女別 駐車場有 新耐震基準 |
| 備考 |
周辺マップ
ビルコード:213798

