鹿浜5丁目旧そば屋ビル
ビルコード:215465
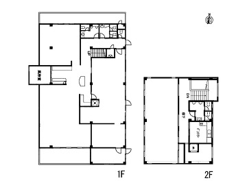
| 募集階数 | 1-2階 |
|---|---|
| 面積 | 120.15坪 |
| 賃料 | 総額1,650,000円 (坪単価13,733円) |
| 共益費 | 総額30,000円 (坪単価250円) |
| 合計賃料 | 総額1,680,000円 |
| 預託金 | 総額9,900,000円 (坪単価 82,397円) |
| 入居可能日 | 相談 |
| 所在地 | 東京都足立区鹿浜5-16-10 →Google Map |
| 交通 アクセス |
日暮里・舎人ライナー 西新井大師西駅25分 日暮里・舎人ライナー 谷在家駅28分 |
| 規模 | 地上2階建 |
| 構造 | 鉄骨造 |
| 竣工 | 1986年12月 (新耐震基準ビル) |
| フロア設備 | 個別空調 トイレ男女別 24時間使用可 駐車場有 新耐震基準 天高2500mm |
| 備考 |
周辺マップ
ビルコード:215465

