笹塚総榮ビル
ビルコード:33608
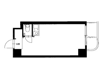
| 募集階数 | 9階 |
|---|---|
| 面積 | 6.92坪 |
| 賃料 | 総額117,000円 (坪単価16,908円) |
| 共益費 | 総額6,000円 (坪単価867円) |
| 合計賃料 | 総額123,000円 |
| 預託金 | 賃料の3ヶ月分 |
| 入居可能日 | 即日 |
| 所在地 | 東京都渋谷区笹塚1-56-10 →Google Map |
| 交通 アクセス |
京王線 笹塚駅1分 京王線 幡ヶ谷駅10分 小田急小田原線 代々木上原駅18分 |
| 規模 | 地上11階建 |
| 構造 | 鉄骨鉄筋コンクリート造 |
| 竣工 | 1987年04月 (新耐震基準ビル) |
| フロア設備 | 個別空調 24時間使用可 新耐震基準 |
| 備考 |
周辺マップ
ビルコード:33608



