仮)LUMIEC KANNAIビル
ビルコード:215183
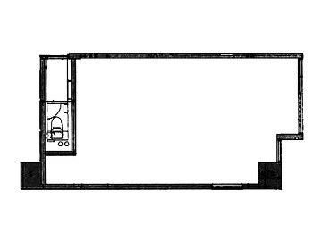
| 募集階数 | 1階 |
|---|---|
| 面積 | 12.19坪 |
| 賃料 | 総額365,700円 (坪単価30,000円) |
| 共益費 | 賃料に含む |
| 合計賃料 | 総額365,700円 |
| 預託金 | 賃料の3ヶ月分 |
| 入居可能日 | 2026年04月 |
| 所在地 | 神奈川県横浜市中区吉田町5-12 →Google Map |
| 交通 アクセス |
JR根岸線 関内駅5分 JR京浜東北線 関内駅5分 横浜市ブルーライン 関内駅5分 |
| 規模 | 地上10階建 |
| 構造 | 鉄筋コンクリート造 |
| 竣工 | 2026年04月 (新耐震基準ビル) |
| フロア設備 | 新耐震基準 |
| 備考 |
周辺マップ
ビルコード:215183


