貸店舗
ビルコード:215007
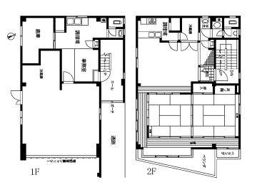
| 募集階数 | 1-2階 |
|---|---|
| 面積 | 50.05坪 |
| 賃料 | 総額430,000円 (坪単価8,591円) |
| 共益費 | 総額20,000円 (坪単価400円) |
| 合計賃料 | 総額450,000円 |
| 預託金 | 賃料の4ヶ月分 |
| 入居可能日 | 相談 |
| 所在地 | 神奈川県横浜市中区本牧三之谷16-6 →Google Map |
| 交通 アクセス |
JR根岸線 山手駅31分 JR京浜東北線 山手駅31分 JR根岸線 根岸駅42分 JR京浜東北線 根岸駅42分 みなとみらい線 元町・中華街駅46分 |
| 規模 | 地上4階建 |
| 構造 | 鉄骨造 |
| 竣工 | 1980年11月 |
| フロア設備 | 24時間使用可 |
| 備考 |
周辺マップ
ビルコード:215007

