店舗事務所
ビルコード:214994
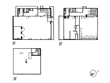
| 募集階数 | 1-3階 |
|---|---|
| 面積 | 110.64坪 |
| 賃料 | 相談 |
| 共益費 | 相談 |
| 合計賃料 | 相談 |
| 預託金 | 相談 |
| 入居可能日 | 相談 |
| 所在地 | 埼玉県深谷市上柴町西4-2-3 →Google Map |
| 交通 アクセス |
JR高崎線 深谷駅25分 |
| 規模 | 地上3階建 |
| 構造 | 鉄骨造 |
| 竣工 | 1984年10月 (新耐震基準ビル) |
| フロア設備 | トイレ男女別 駐車場有 新耐震基準 |
| 備考 |
周辺マップ
ビルコード:214994

