川戸BASEビル
ビルコード:213105
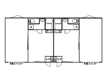
| 募集階数 | 1階 |
|---|---|
| 面積 | 27.83坪 |
| 賃料 | 総額250,000円 (坪単価8,983円) |
| 共益費 | 賃料に含む |
| 合計賃料 | 総額250,000円 |
| 預託金 | 賃料の2ヶ月分 |
| 入居可能日 | 相談 |
| 所在地 | 千葉県千葉市中央区川戸町244-1 →Google Map |
| 交通 アクセス |
京成千原線 大森台駅33分 JR外房線 鎌取駅42分 |
| 規模 | 地上1階建 |
| 構造 | 木造 |
| 竣工 | 2025年09月 (新耐震基準ビル) |
| フロア設備 | 駐車場有 新耐震基準 |
| 備考 |
周辺マップ
ビルコード:213105

