第2伊藤ビル
ビルコード:114187
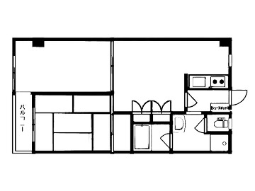
| 募集階数 | 1階 |
|---|---|
| 面積 | 13.87坪 |
| 賃料 | 総額135,000円 (坪単価9,733円) |
| 共益費 | 総額5,000円 (坪単価360円) |
| 合計賃料 | 総額140,000円 |
| 預託金 | 賃料の2ヶ月分 |
| 入居可能日 | 即日 |
| 所在地 | 東京都調布市仙川町1-10-4 →Google Map |
| 交通 アクセス |
京王線 仙川駅2分 京王線 つつじヶ丘駅15分 京王線 千歳烏山駅25分 |
| 規模 | 地上3階建 |
| 構造 | 鉄筋コンクリート造 |
| 竣工 | 1984年04月 (新耐震基準ビル) |
| フロア設備 | 個別空調 駐車場有 新耐震基準 |
| 備考 |
周辺マップ
ビルコード:114187

