石田東神田ビル
ビルコード:165706
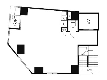
| 募集階数 | 4階 |
|---|---|
| 面積 | 13.16坪 |
| 賃料 | 総額243,000円 (坪単価18,465円) |
| 共益費 | 総額20,000円 (坪単価1,520円) |
| 合計賃料 | 総額263,000円 |
| 預託金 | 総額729,000円 (坪単価 55,395円) |
| 入居可能日 | 即日 |
| 所在地 | 東京都千代田区東神田1-11-5 →Google Map |
| 交通 アクセス |
JR総武線快速 馬喰町駅4分 都営新宿線 岩本町駅4分 JR山手線 秋葉原駅7分 JR京浜東北線 秋葉原駅7分 JR中央・総武線 秋葉原駅7分 東京メトロ日比谷線 秋葉原駅7分 東京メトロ銀座線 神田駅12分 JR総武線快速 新日本橋駅14分 |
| 規模 | 地上11階建 |
| 構造 | 鉄筋コンクリート造 |
| 竣工 | 2018年12月 (新耐震基準ビル) |
| フロア設備 | 個別空調 新耐震基準 |
| 備考 |
周辺マップ
ビルコード:165706



