グランデューク目白坂
ビルコード:57957
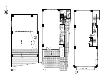
| 募集階数 | B1-2階 |
|---|---|
| 面積 | 87.05坪 |
| 賃料 | 総額950,000円 (坪単価10,913円) |
| 共益費 | 総額80,000円 (坪単価919円) |
| 合計賃料 | 総額1,030,000円 |
| 預託金 | 総額2,850,000円 (坪単価 32,740円) |
| 入居可能日 | 即日 |
| 所在地 | 東京都文京区水道2-17-1 →Google Map |
| 交通 アクセス |
東京メトロ有楽町線 江戸川橋駅6分 |
| 規模 | 地下1階地上4階建 |
| 構造 | 鉄筋コンクリート造 |
| 竣工 | 1986年09月 (新耐震基準ビル) |
| フロア設備 | 個別空調 トイレ男女別 24時間使用可 駐車場有 新耐震基準 |
| 備考 |
周辺マップ
ビルコード:57957



