JFNセンタービル
ビルコード:202242
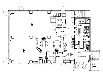
| 募集階数 | 7階 |
|---|---|
| 面積 | 60.84坪 |
| 賃料 | 総額1,825,200円 (坪単価30,000円) |
| 共益費 | 賃料に含む |
| 合計賃料 | 総額1,825,200円 |
| 預託金 | 賃料の6ヶ月分 |
| 入居可能日 | 相談 |
| 所在地 | 東京都千代田区麹町1-8 →Google Map |
| 交通 アクセス |
東京メトロ半蔵門線 半蔵門駅1分 東京メトロ有楽町線 麹町駅5分 東京メトロ有楽町線 永田町駅12分 東京メトロ半蔵門線 永田町駅12分 東京メトロ南北線 永田町駅12分 都営新宿線 市ケ谷駅12分 |
| 規模 | 地上8階建 |
| 構造 | 鉄骨鉄筋コンクリート造 |
| 竣工 | 1996年02月 (新耐震基準ビル) |
| フロア設備 | 個別空調 OAフロア トイレ男女別 駐車場有 新耐震基準 |
| 備考 |
周辺マップ
ビルコード:202242






