淵野辺2丁目貸戸建ビル
ビルコード:214339
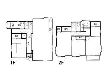
| 募集階数 | 1-2階 |
|---|---|
| 面積 | 29.36坪 |
| 賃料 | 総額150,000円 (坪単価5,109円) |
| 共益費 | 賃料に含む |
| 合計賃料 | 総額150,000円 |
| 預託金 | 賃料の2ヶ月分 |
| 入居可能日 | 相談 |
| 所在地 | 神奈川県相模原市中央区淵野辺2-17-25 →Google Map |
| 交通 アクセス |
JR横浜線 淵野辺駅14分 |
| 規模 | 地上2階建 |
| 構造 | 木造 |
| 竣工 | 1988年10月 (新耐震基準ビル) |
| フロア設備 | 個別空調 24時間使用可 駐車場有 新耐震基準 |
| 備考 |
周辺マップ
ビルコード:214339

