菖蒲町貸店舗
ビルコード:214233
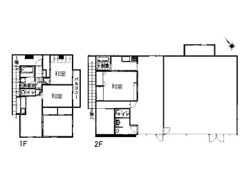
募集階数 | 1-2階 |
---|---|
面積 | 67.85坪 |
賃料 | 総額500,000円 (坪単価7,369円) |
共益費 | 賃料に含む |
合計賃料 | 総額500,000円 |
預託金 | 賃料の2ヶ月分 |
入居可能日 | 相談 |
所在地 | 埼玉県久喜市菖蒲町三箇841-1 →Google Map |
交通 アクセス |
JR宇都宮線 久喜駅99分 |
規模 | 地上2階建 |
構造 | 鉄骨造 |
竣工 | 1999年07月 (新耐震基準ビル) |
フロア設備 | 駐車場有 新耐震基準 |
備考 |
周辺マップ
ビルコード:214233