美浜事務所
ビルコード:172733
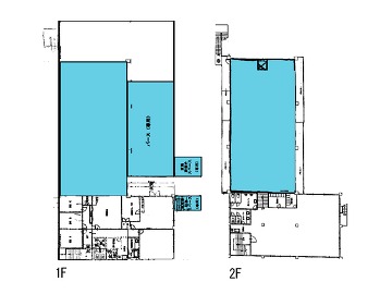
| 募集階数 | 1-2階 |
|---|---|
| 面積 | 136.00坪 |
| 賃料 | 総額639,200円 (坪単価4,700円) |
| 共益費 | 賃料に含む |
| 合計賃料 | 総額639,200円 |
| 預託金 | 賃料の3ヶ月分 |
| 入居可能日 | 即日 |
| 所在地 | 千葉県千葉市美浜区新港55-2 →Google Map |
| 交通 アクセス |
JR京葉線 千葉みなと駅17分 京成千葉線 西登戸駅18分 |
| 規模 | 地上3階建 |
| 構造 | 鉄筋コンクリート造 |
| 竣工 | 1969年07月 |
| フロア設備 | 個別空調 トイレ男女別 24時間使用可 駐車場有 天高4500mm |
| 備考 |
周辺マップ
ビルコード:172733

