大宮サウスゲートフロントビル
ビルコード:204213
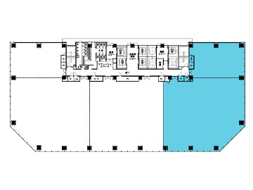
| 募集階数 | 4階 |
|---|---|
| 面積 | 185.88坪 |
| 賃料 | 総額4,647,000円 (坪単価25,000円) |
| 共益費 | 賃料に含む |
| 合計賃料 | 総額4,647,000円 |
| 預託金 | 相談 |
| 入居可能日 | 即日 |
| 所在地 | 埼玉県さいたま市中央区新都心7-2 →Google Map |
| 交通 アクセス |
JR宇都宮線 さいたま新都心駅7分 JR高崎線 さいたま新都心駅7分 JR京浜東北線 さいたま新都心駅7分 JR埼京線 北与野駅12分 |
| 規模 | 地下1階地上12階建 |
| 構造 | 鉄骨造 |
| 竣工 | 2025年12月 (新耐震基準ビル) |
| フロア設備 | 個別空調 OAフロア トイレ男女別 駐車場有 新耐震基準 天高2800mm |
| 備考 |
周辺マップ
ビルコード:204213






