貸事務所
ビルコード:213667
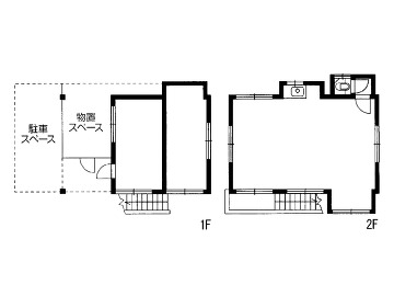
| 募集階数 | 1-2階 |
|---|---|
| 面積 | 15.73坪 |
| 賃料 | 相談 |
| 共益費 | 相談 |
| 合計賃料 | 相談 |
| 預託金 | 相談 |
| 入居可能日 | 相談 |
| 所在地 | 神奈川県厚木市林3-17-9 →Google Map |
| 交通 アクセス |
小田急小田原線 本厚木駅47分 JR相模線 厚木駅56分 |
| 規模 | 地上2階建 |
| 構造 | プレハブ造 |
| 竣工 | 2005年05月 (新耐震基準ビル) |
| フロア設備 | 駐車場有 新耐震基準 |
| 備考 |
周辺マップ
ビルコード:213667

