LESPACE(レスパス)ビル
ビルコード:213453
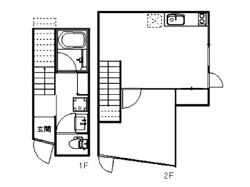
| 募集階数 | 1-2階 |
|---|---|
| 面積 | 12.42坪 |
| 賃料 | 総額165,000円 (坪単価13,285円) |
| 共益費 | 総額5,000円 (坪単価403円) |
| 合計賃料 | 総額170,000円 |
| 預託金 | 賃料の1ヶ月分 |
| 入居可能日 | 即日 |
| 所在地 | 東京都中野区中野2-35-15 →Google Map |
| 交通 アクセス |
JR中央・総武線 東中野駅8分 東京メトロ丸ノ内線 中野坂上駅14分 JR中央線快速 中野駅15分 JR中央・総武線 中野駅15分 |
| 規模 | 地上3階建 |
| 構造 | 木造 |
| 竣工 | 2025年05月 (新耐震基準ビル) |
| フロア設備 | 個別空調 新耐震基準 |
| 備考 |
周辺マップ
ビルコード:213453

