オークラプレステージタワー
ビルコード:152813
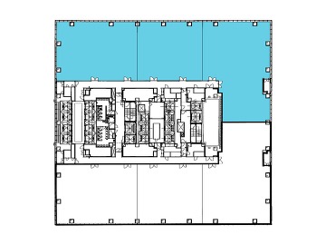
| 募集階数 | 17階 |
|---|---|
| 面積 | 344.44坪 |
| 賃料 | 相談 |
| 共益費 | 相談 |
| 合計賃料 | 相談 |
| 預託金 | 相談 |
| 入居可能日 | 2026年04月 |
| 所在地 | 東京都港区虎ノ門2-10-4 →Google Map |
| 交通 アクセス |
東京メトロ銀座線 溜池山王駅4分 東京メトロ日比谷線 虎ノ門ヒルズ駅4分 東京メトロ日比谷線 神谷町駅6分 東京メトロ銀座線 虎ノ門駅7分 東京メトロ千代田線 国会議事堂前駅9分 東京メトロ南北線 六本木一丁目駅9分 |
| 規模 | 地下1階地上41階建 |
| 構造 | 鉄骨造 |
| 竣工 | 2019年07月 (新耐震基準ビル) |
| フロア設備 | 個別空調 OAフロア トイレ男女別 24時間使用可 駐車場有 新耐震基準 天高2850mm |
| 備考 |
周辺マップ
ビルコード:152813






