ヒューリック銀座7丁目ビル
ビルコード:134179
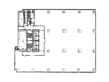
| 募集階数 | 2階 |
|---|---|
| 面積 | 309.49坪 |
| 賃料 | 相談 |
| 共益費 | 相談 |
| 合計賃料 | 相談 |
| 預託金 | 相談 |
| 入居可能日 | 2026年06月 |
| 所在地 | 東京都中央区銀座7-3-5 →Google Map |
| 交通 アクセス |
東京メトロ丸ノ内線 銀座駅4分 東京メトロ日比谷線 銀座駅4分 東京メトロ銀座線 銀座駅4分 JR横須賀線 新橋駅6分 JR東海道本線 新橋駅7分 JR山手線 新橋駅7分 JR京浜東北線 新橋駅7分 JR京浜東北線 有楽町駅8分 JR山手線 有楽町駅8分 |
| 規模 | 地下5階地上9階建 |
| 構造 | 鉄骨鉄筋コンクリート造 |
| 竣工 | 1962年10月 (耐震補強) |
| フロア設備 | 個別空調 OAフロア トイレ男女別 新耐震基準 天高2500mm |
| 備考 |
周辺マップ
ビルコード:134179



