タクエー吉田町ビル
ビルコード:202238
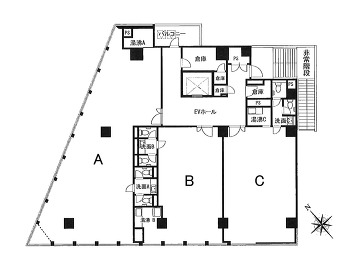
| 募集階数 | 4階 |
|---|---|
| 面積 | 16.88坪 |
| 賃料 | 総額230,785円 (坪単価13,672円) |
| 共益費 | 総額42,200円 (坪単価2,500円) |
| 合計賃料 | 総額272,985円 |
| 預託金 | 賃料の10ヶ月分 |
| 入居可能日 | 即日 |
| 所在地 | 神奈川県横浜市中区吉田町48 →Google Map |
| 交通 アクセス |
JR根岸線 関内駅4分 JR京浜東北線 関内駅4分 JR根岸線 桜木町駅5分 JR京浜東北線 桜木町駅5分 |
| 規模 | 地下1階地上9階建 |
| 構造 | 鉄骨鉄筋コンクリート造 |
| 竣工 | 2024年06月 (新耐震基準ビル) |
| フロア設備 | 個別空調 OAフロア トイレ男女別 駐車場有 新耐震基準 天高2800mm |
| 備考 |
周辺マップ
ビルコード:202238


