明和第3脚折町ビル
ビルコード:195724
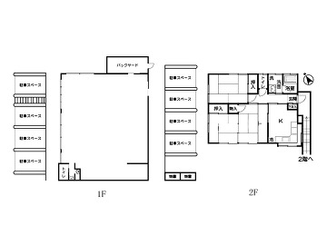
| 募集階数 | 1-2階 |
|---|---|
| 面積 | 58.25坪 |
| 賃料 | 総額490,000円 (坪単価8,412円) |
| 共益費 | 賃料に含む |
| 合計賃料 | 総額490,000円 |
| 預託金 | 賃料の3ヶ月分 |
| 入居可能日 | 2026年01月 |
| 所在地 | 埼玉県鶴ヶ島市脚折町1-36-5 →Google Map |
| 交通 アクセス |
東武東上線 坂戸駅9分 東武東上線 若葉駅19分 |
| 規模 | 地上2階建 |
| 構造 | 木・鉄骨造 |
| 竣工 | 1984年07月 (新耐震基準ビル) |
| フロア設備 | 駐車場有 新耐震基準 |
| 備考 |
周辺マップ
ビルコード:195724

