秀和恵比寿レジデンス
ビルコード:34931
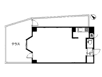
| 募集階数 | 1階 |
|---|---|
| 面積 | 12.65坪 |
| 賃料 | 総額210,000円 (坪単価16,601円) |
| 共益費 | 総額10,000円 (坪単価791円) |
| 合計賃料 | 総額220,000円 |
| 預託金 | 賃料の3ヶ月分 |
| 入居可能日 | 即日 |
| 所在地 | 東京都目黒区中目黒1-1-26 →Google Map |
| 交通 アクセス |
東京メトロ日比谷線 恵比寿駅4分 JR埼京線 恵比寿駅6分 JR湘南新宿ライン 恵比寿駅6分 JR山手線 恵比寿駅6分 東京メトロ日比谷線 中目黒駅6分 東急東横線 中目黒駅6分 東急東横線 代官山駅7分 |
| 規模 | 地上8階建 |
| 構造 | 鉄筋コンクリート造 |
| 竣工 | 1970年04月 |
| フロア設備 | 個別空調 24時間使用可 駐車場有 |
| 備考 |
周辺マップ
ビルコード:34931



