ライオンズマンション新宿5丁目ビル
ビルコード:55403
| 募集階数 | 1階 |
|---|---|
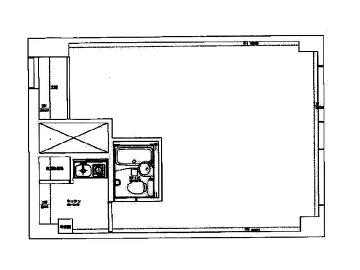
| 面積 | 12.25坪 |
| 賃料 | 総額155,000円 (坪単価12,653円) |
| 共益費 | 賃料に含む |
| 合計賃料 | 総額155,000円 |
| 預託金 | 賃料の2ヶ月分 |
| 入居可能日 | 即日 |
| 所在地 | 東京都新宿区新宿5-11-18 →Google Map |
| 交通 アクセス |
東京メトロ丸ノ内線 新宿三丁目駅5分 JR中央線快速 新宿駅11分 JR埼京線 新宿駅11分 JR湘南新宿ライン 新宿駅11分 東京メトロ丸ノ内線 新宿駅11分 東京メトロ副都心線 新宿三丁目駅11分 都営大江戸線 新宿駅11分 都営新宿線 新宿駅11分 JR山手線 新宿駅11分 JR中央・総武線 新宿駅11分 |
| 規模 | 地上8階建 |
| 構造 | 鉄骨鉄筋コンクリート造 |
| 竣工 | 1984年07月 (新耐震基準ビル) |
| フロア設備 | 個別空調 新耐震基準 |
| 備考 |
周辺マップ
ビルコード:55403



