エイセキビル
ビルコード:152341
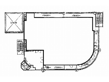
| 募集階数 | 5階 |
|---|---|
| 面積 | 106.34坪 |
| 賃料 | 総額900,000円 (坪単価8,463円) |
| 共益費 | 賃料に含む |
| 合計賃料 | 総額900,000円 |
| 預託金 | 総額9,000,000円 (坪単価 84,634円) |
| 入居可能日 | 即日 |
| 所在地 | 神奈川県横浜市磯子区西町12-18 →Google Map |
| 交通 アクセス |
JR根岸線 根岸駅1分 JR京浜東北線 根岸駅1分 |
| 規模 | 地上6階建 |
| 構造 | 鉄骨造 |
| 竣工 | 1993年10月 (新耐震基準ビル) |
| フロア設備 | 24時間使用可 新耐震基準 |
| 備考 |
周辺マップ
ビルコード:152341

