貸倉庫
ビルコード:124153
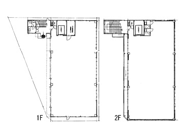
| 募集階数 | 1-2階 |
|---|---|
| 面積 | 237.65坪 |
| 賃料 | 総額1,100,000円 (坪単価4,629円) |
| 共益費 | 賃料に含む |
| 合計賃料 | 総額1,100,000円 |
| 預託金 | 総額4,400,000円 (坪単価 18,515円) |
| 入居可能日 | 2026年05月 |
| 所在地 | 埼玉県戸田市笹目7-11-10 →Google Map |
| 交通 アクセス |
都営三田線 西高島平駅34分 JR埼京線 戸田駅37分 JR埼京線 北戸田駅40分 |
| 規模 | 地上2階建 |
| 構造 | 鉄骨造 |
| 竣工 | |
| フロア設備 | 個別空調 トイレ男女別 24時間使用可 駐車場有 |
| 備考 |
周辺マップ
ビルコード:124153

