AXIS(アクシス)ビル
ビルコード:116211
| 募集階数 | 2階 |
|---|---|
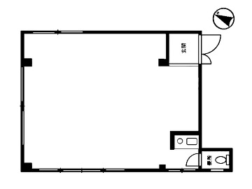
| 面積 | 13.26坪 |
| 賃料 | 総額155,000円 (坪単価11,689円) |
| 共益費 | 総額5,000円 (坪単価377円) |
| 合計賃料 | 総額160,000円 |
| 預託金 | 賃料の2ヶ月分 |
| 入居可能日 | 相談 |
| 所在地 | 東京都世田谷区南烏山3-16-2 →Google Map |
| 交通 アクセス |
京王線 芦花公園駅3分 京王線 千歳烏山駅8分 京王線 八幡山駅13分 |
| 規模 | 地上4階建 |
| 構造 | 鉄骨造 |
| 竣工 | 1992年05月 (新耐震基準ビル) |
| フロア設備 | 新耐震基準 |
| 備考 |
周辺マップ
ビルコード:116211






