大久保センタービル
ビルコード:39909
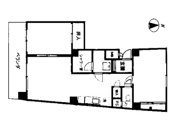
| 募集階数 | 5階 |
|---|---|
| 面積 | 17.04坪 |
| 賃料 | 総額150,000円 (坪単価8,803円) |
| 共益費 | 総額15,000円 (坪単価880円) |
| 合計賃料 | 総額165,000円 |
| 預託金 | 総額450,000円 (坪単価 26,408円) |
| 入居可能日 | 即日 |
| 所在地 | 東京都新宿区百人町1-18-9 →Google Map |
| 交通 アクセス |
JR中央・総武線 大久保駅1分 JR山手線 新大久保駅5分 西武新宿線 西武新宿駅12分 東京メトロ丸ノ内線 西新宿駅17分 都営大江戸線 新宿西口駅17分 |
| 規模 | 地上7階建 |
| 構造 | 鉄筋コンクリート造 |
| 竣工 | 1983年05月 (新耐震基準ビル) |
| フロア設備 | 個別空調 新耐震基準 |
| 備考 |
周辺マップ
ビルコード:39909



