ザボン村上ビル
ビルコード:51714
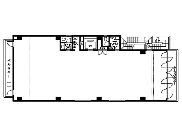
| 募集階数 | 5階 |
|---|---|
| 面積 | 48.22坪 |
| 賃料 | 総額482,200円 (坪単価10,000円) |
| 共益費 | 総額144,660円 (坪単価3,000円) |
| 合計賃料 | 総額626,860円 |
| 預託金 | 賃料の8ヶ月分 |
| 入居可能日 | 即日 |
| 所在地 | 東京都台東区上野3-2-4 →Google Map |
| 交通 アクセス |
東京メトロ銀座線 末広町駅2分 JR京浜東北線 御徒町駅5分 JR山手線 御徒町駅5分 都営大江戸線 上野御徒町駅6分 東京メトロ日比谷線 仲御徒町駅6分 JR中央・総武線 秋葉原駅8分 JR山手線 秋葉原駅8分 東京メトロ千代田線 湯島駅8分 JR京浜東北線 秋葉原駅8分 |
| 規模 | 地下1階地上7階建 |
| 構造 | 鉄骨鉄筋コンクリート造 |
| 竣工 | 1988年07月 (新耐震基準ビル) |
| フロア設備 | 個別空調 トイレ男女別 24時間使用可 駐車場有 新耐震基準 天高2450mm |
| 備考 |
周辺マップ
ビルコード:51714



