三雄ビル
ビルコード:8001
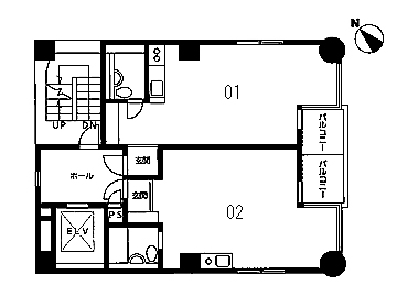
| 募集階数 | 5階 |
|---|---|
| 面積 | 8.75坪 |
| 賃料 | 総額150,000円 (坪単価17,143円) |
| 共益費 | 賃料に含む |
| 合計賃料 | 総額150,000円 |
| 預託金 | 総額900,000円 (坪単価 102,857円) |
| 入居可能日 | 即日 |
| 所在地 | 東京都渋谷区渋谷1-7-3 →Google Map |
| 交通 アクセス |
東急田園都市線 渋谷駅5分 JR埼京線 渋谷駅5分 JR湘南新宿ライン 渋谷駅5分 JR山手線 渋谷駅5分 東京メトロ銀座線 渋谷駅5分 東京メトロ銀座線 表参道駅10分 東京メトロ千代田線 明治神宮前〈原宿〉駅14分 |
| 規模 | 地上9階建 |
| 構造 | 鉄骨鉄筋コンクリート造 |
| 竣工 | 1979年11月 |
| フロア設備 | 個別空調 24時間使用可 |
| 備考 |
周辺マップ
ビルコード:8001



