日本生命南藤沢ビル
ビルコード:13909
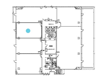
| 募集階数 | 4階 |
|---|---|
| 面積 | 26.59坪 |
| 賃料 | 相談 |
| 共益費 | 相談 |
| 合計賃料 | 相談 |
| 預託金 | 相談 |
| 入居可能日 | 即日 |
| 所在地 | 神奈川県藤沢市南藤沢4-3 →Google Map |
| 交通 アクセス |
JR東海道本線 藤沢駅4分 |
| 規模 | 地下1階地上5階建 |
| 構造 | 鉄骨鉄筋コンクリート造 |
| 竣工 | 1987年08月 (新耐震基準ビル) |
| フロア設備 | トイレ男女別 24時間使用可 駐車場有 新耐震基準 |
| 備考 |
周辺マップ
ビルコード:13909

