藤和八丁堀ビル
ビルコード:42437
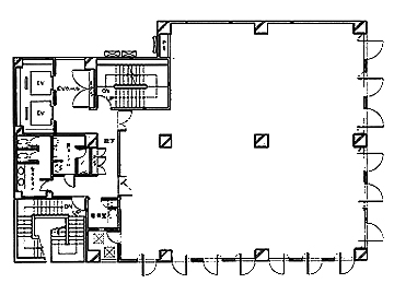
| 募集階数 | 2階 |
|---|---|
| 面積 | 71.35坪 |
| 賃料 | 相談 |
| 共益費 | 相談 |
| 合計賃料 | 相談 |
| 預託金 | 相談 |
| 入居可能日 | 2026年05月 |
| 所在地 | 東京都中央区八丁堀2-20-1 →Google Map |
| 交通 アクセス |
JR京葉線 八丁堀駅2分 東京メトロ日比谷線 八丁堀駅2分 東京メトロ日比谷線 茅場町駅6分 東京メトロ東西線 茅場町駅6分 都営浅草線 宝町駅8分 |
| 規模 | 地下1階地上8階建 |
| 構造 | 鉄骨鉄筋コンクリート造 |
| 竣工 | 1991年03月 (新耐震基準ビル) |
| フロア設備 | 個別空調 トイレ男女別 24時間使用可 新耐震基準 天高2500mm |
| 備考 |
周辺マップ
ビルコード:42437






