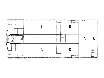
貸工場(ビルコード:212397)1階 375.00坪

photo 間取り

周辺地図