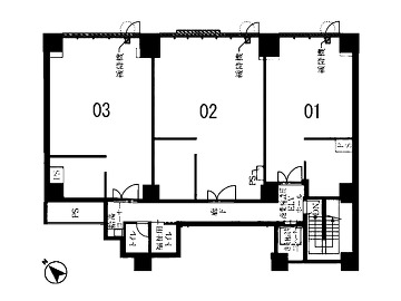
ジオ横浜大通り公園(ビルコード:217821)2階 20.42坪

photo 間取り

周辺地図