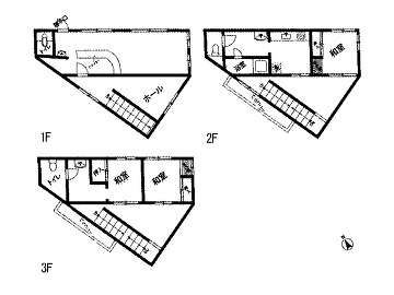
店舗付戸建(ビルコード:217447)1-3階 39.26坪

photo 間取り

周辺地図